Mobile Home With Mother In Law Suite
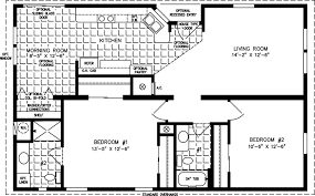
Mobile home with mother in law suite. 3801 Kimball Ave TAMPA FL 33614. Often utilized by homeowners in primarily rural areas Manufactured homes. These spaces could be a finished basement apartment a converted garage or a detached guest house.
Building Your Mother-In-Law Suite. These home designs. Access Rd Clyde TX 79510.
3801 Kimball Ave TAMPA FL 33614. 200 Sq Ft tiny home. Sometimes the apartment is connected to the main house through the laundry room.
View listing photos review sales history and use our detailed real estate filters to find the perfect place. 14K Likes 53 Comments. See more ideas about modular home floor.
In-law suites are not just for parent stays but provide a luxurious and private sanctuary for guests and a place for kids back from school. Each one will have their own legal definitions. Keep climbing to reach the elevated in.
This is a more agreeable option than shouldering the cost of keeping them in a separate home. They typically include a bedroom bathroom kitchen living space and a separate entrance from the primary home. Call us at 1-800-913-2350.
3807 Claridge Rd N Mobile AL 36608. Find a sellers agent.
Its faced with hand-cut limestone and features 16-foot ceilings hard carved fireplaces and marble countertops.
This space can then be used by both residences. What makes this home one to remember are the additional in-law suite customizations. A mother-in-law suite is a way to give them what they want their own life and still keep them close where you can help if the need arises. Learn more about our story HERE. Buy and sell with Zillow 360. Find a sellers agent. This weeks virtual OpenHouse features a custom Montgomery Classic. 200 Sq Ft tiny home. 3807 Claridge Rd N Mobile AL 36608.
Mother-in-law or dual occupancy homes are sometimes used to refer to the development of two detached homes on one allotment of land. Your mother-in-law suite can be built quickly and efficiently with our ready-to-assemble kits. 3807 Claridge Rd N Mobile AL 36608. Mother In Law Suite - Tampa home for sale. Posted April 11 2013. Zillow has 83 homes for sale in Tennessee matching Mother In Law Suite. Buy and sell with Zillow 360.
 
 										 				 
 										 				 
 										 				 
 										 				 
 										 				 
 										 				 
 										 				 
 										 				 
 										 				 
 										 				 
 										 				 
 										 				 
 										 				 
 										 				 
 										 				 
 										 				 
 										 				 
 										 				 
 										 				 
 										 				 
 										 				 
 										 				 
 										 				 
 										 				 
 										 				 
 										 				 
 										 				 
 										 				 
 										 				 
 										 				 
 										 				 
 										 				 
 										 				 
 										 				 
 										 				 
 										 				 
 										 				 
 										 				 
 										 				 
 										 				 
 										 				 
 										 				
Post a Comment for "Mobile Home With Mother In Law Suite"